
A 50-Year Legacy, A Personal Vision
More than just a new address, 328 Beaver Street is the personal vision of Robert J. Lewis, the founder and CEO of Orbital Engineering. This building will not only serve as the new corporate headquarters for Orbital; it is the culmination of a 50-year career in engineering excellence. Because we had a unique opportunity to create a new landmark for the borough, we prioritized design and aesthetics over maximizing square footage to build a lasting legacy.
An Unwavering Commitment
For over five decades, Orbital Engineering has been a strategic partner to the world's most successful businesses by prioritizing innovative solutions, effective communication, and complete transparency.
A Pittsburgh Story
Founded by Robert J. Lewis in the Pittsburgh area in 1969, Orbital Engineering has grown from a local firm into a nationally recognized, client-centered organization.
A Commitment to Integrity
Orbital Engineering is a certified veteran-owned business, built in the same spirit of service as its founder.
A 50-Year Reputation
The firm has successfully completed over 25,000 projects by holding every detail to the highest standard of engineering excellence.

A Bold New Chapter for Beaver Street
The journey of 328 Beaver began with a simple yet ambitious question: How can a mixed-use development not only provide luxury homes but also enrich the borough's architectural narrative? The answer lay in a design that is both bold and contextually aware.
A central feature is the large, open-air atrium with a tree, creating a dynamic green space within the building's core. The building's unique facade, with its interplay of modern materials and warm accents, is designed to create a dynamic presence on Beaver Street.
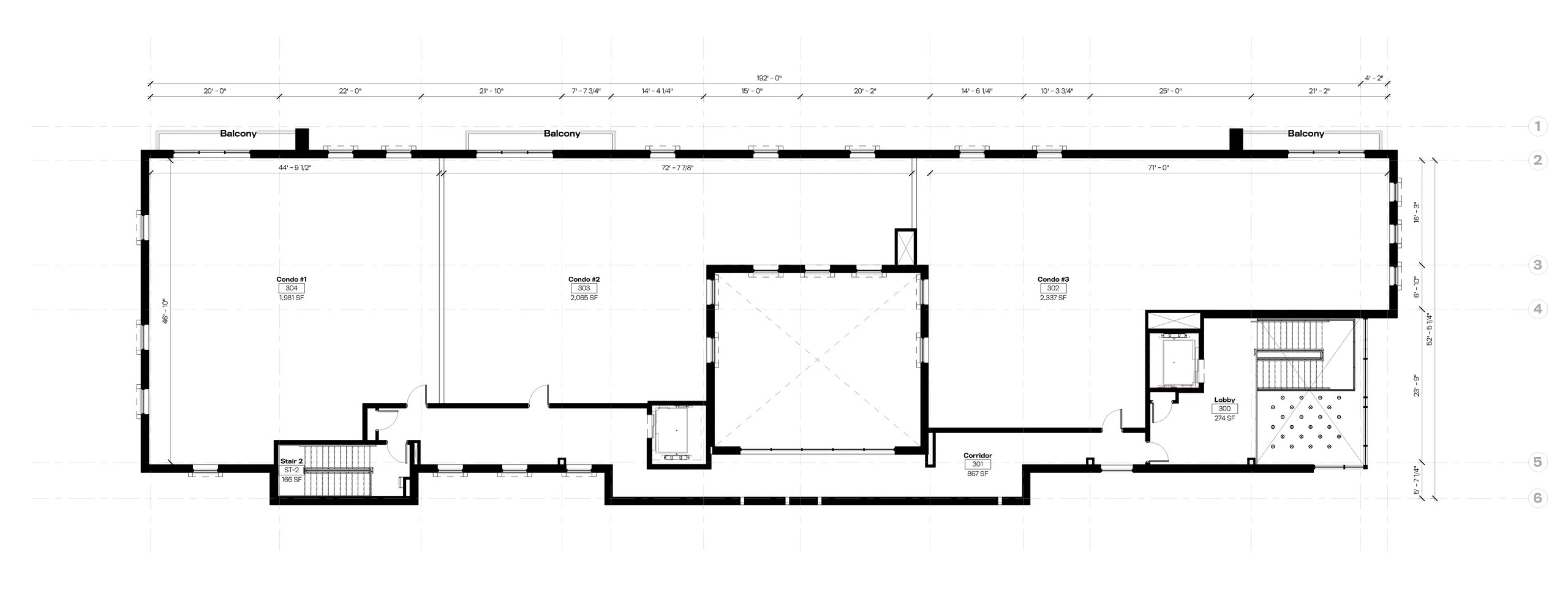
The second floor will house the headquarters for Orbital Engineering, while the ground floor offers prime retail space. The third floor is dedicated to three unique luxury residences, each meticulously planned to maximize comfort, views and light. 328 Beaver is designed not just for today, but for a lasting legacy of elegance and innovation.
From Blueprint to Reality
The journey from groundbreaking to final finishes is a multi-year endeavor marked by precision and craftsmanship. Here are the anticipated delivery timelines for each component of the project.
White-Box Shell Delivery
Anticipated Late 2026
Move-In Ready
Est. Early 2027
Tenant Fit-Out
Anticipated Late 2026
Occupancy
Anticipated Late 2026
The Building
Explore the architectural renderings, site plans, and floor plates that define the 328 Beaver development.






A Team Forged in Trust
A project of this caliber requires a team built on trust and a shared commitment to quality.

Desmone
Architecture & Interior Design
A renowned firm responsible for both the primary architecture and the sophisticated interior design of The Residences at 328 Beaver, ensuring a cohesive and visionary final product.

Robert Rokop
Associate Architect
In partnership with Desmone, Robert brings a unique and personal vision to the project. His long-standing relationship with the developer, which includes designing Mr. Lewis's personal home in Florida, ensures this project is executed with an intimate understanding of the developer's exacting standards.

L&L Builders
General Contractor
L&L Builders brings a commitment to quality craftsmanship and efficient project management, ensuring the architectural vision is realized to the highest standards.